Rodinné domy Tursko

Developerský projekt na praze západ

rodinné domy tursko

Rodinné domy jsou kombinací moderního příměstského stylu bydlení, které respektuje venkovský charakter staveb v okolí Prahy. Nízkoenergetická hodnota je dnes standardem, stejně jako nízké náklady a téměř bezemisní provoz. Společným pojítkem všech domů jsou tmavé sedlové střechy v kombinaci se světlou omítky doplněnou detaily ze dřeva. K domu vždy náleží dvě parkovací stání a terasa. Řadové domy jsou navíc stavebně odděleny pro lepší sousedský komfort. Zahrada vždy obsahuje retenční nádrž na vodu pro její zalévání.

3. rodinný dům číslo tři  - 

Samostatné rodinné domy 

1. rodinný dům číslo jedna - rezervováno

2. rodinný dům číslo dva - rezervováno

4. rodinný dům číslo ČTYŘI - rezervováno

VOLNÝ

RD 3 - 14 990 000 ,- Kč

Detaily

Stav: VOlný

V prvním nadzemním podlaží samostatného rodinného domu je situována kuchyně společně s obývacím pokojem, ložnice rodičů, koupelna, samostatné WC, chodba se schodištěm a zádveří. Z obývacího pokoje je navržen výstup na částečně krytou terasu. V podkroví jsou situovány tři pokoje, chodba a koupelna s WC.
 





DISPOZICE: 5+1
PODLAHOVÁ PLOCHA: 194 m2
PLOCHA TERASY: 37,5 m2
ROZLOHA POZEMKU: 600 m2
PARKOVACÍ STÁNÍ: 2x 



Stáhnout Půdorys

Stáhnout bokorys

stáhnout umístění

zavřít

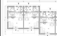
Řadové rodinné domy 

1. rodinný dům číslo jedna - rezervováno

2. rodinný dům číslo dva  -   

3. rodinný dům číslo tři - rezervováno

4. rodinný dům číslo čtyři - rezervováno

VOLNÝ

ŘRD 2 - 11 490 000 ,- Kč

Detaily

Stav: VOlný

V prvním nadzemním podlaží řadového rodinného domu je situována kuchyně společně s obývacím pokojem, dále koupelna, samostatné WC a chodba. Z obývacího pokoje je navržen výstup na terasu. V podkroví najdete tři pokoje, chodbu, schodiště a koupelnu s WC.





DISPOZICE:
4kk
PODLAHOVÁ PLOCHA: 119,7 m2
PLOCHA TERASY: 10 m2
ROZLOHA POZEMKU: 250 m2
PARKOVACÍ STÁNÍ: 2x 
 

Stáhnout Půdorys

Stáhnout bokorys

stáhnout umístění

zavřít

KONTAKTUJTE NÁS - NA VAŠE DOTAZY ODPOVÍME V NEJKRATŠÍ MOŽNÉ DOBĚ

Pokud na nás máte jakékoliv dotazy, neváhejte nás kontaktovat. Rádi vám vše zodpovíme. Těšíme se na vaše zprávy.

ASIMO STAV s.r.o.

developer

Svatoplukova 392/14
615 00 Brno, Židenice


OAK  REAL, s.r.o.

realitní kancelář

Všechna práva vyhrazena / ochrana osobních údajů / web od LUCIE S.

U Dubu 865/23
147 00 Praha 4